Magnolia Addition and Renovation

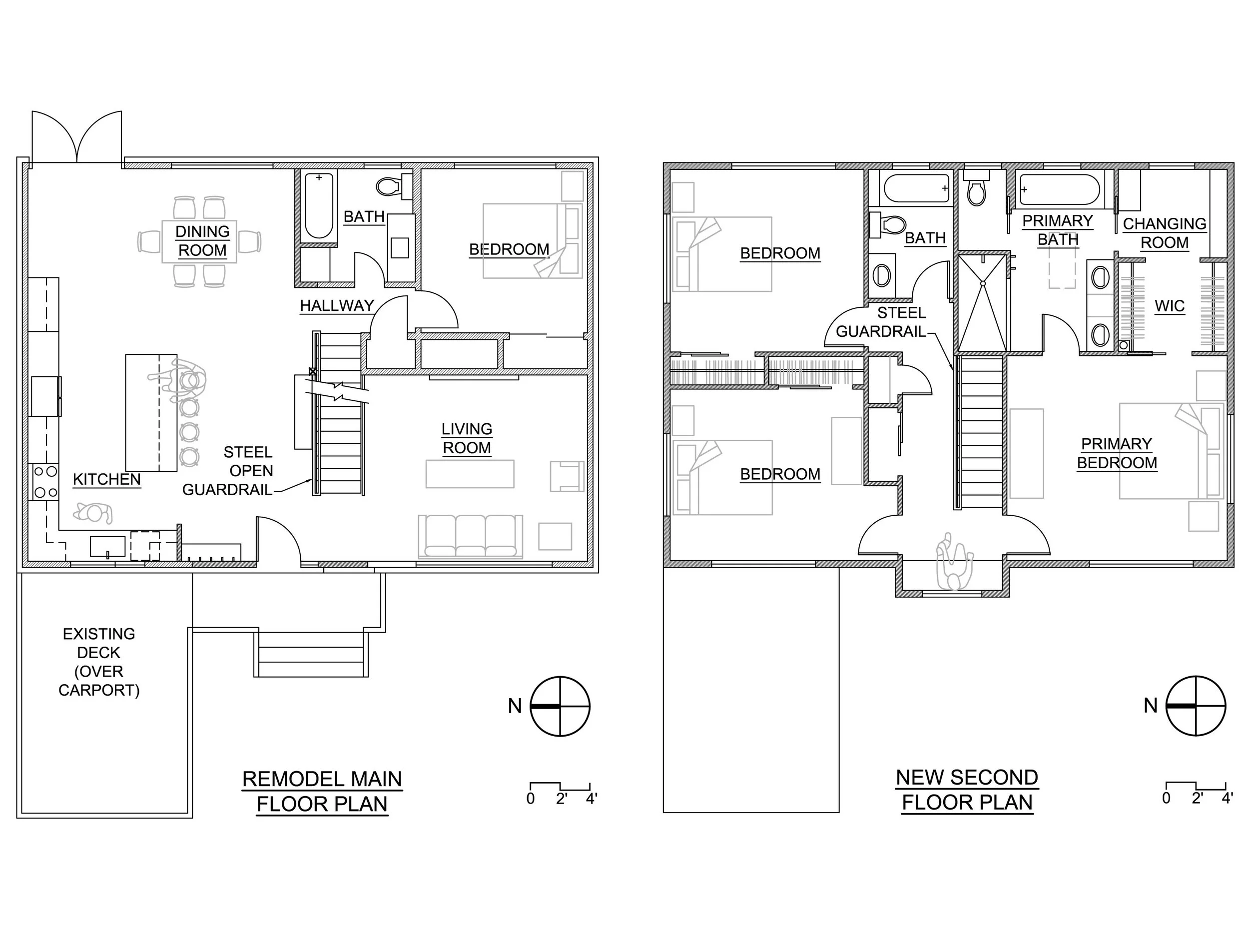
The owners wished to update this 1950s-era home and add space for their growing family. The construction scope included opening up the first-floor plan and the addition of a second story. The interior and exterior railings were fabricated by me and installed by the contractor. The interior stairwell became a focal point for the project.

Next
Next

Kaladi Bros. Coffee Shop